loader image

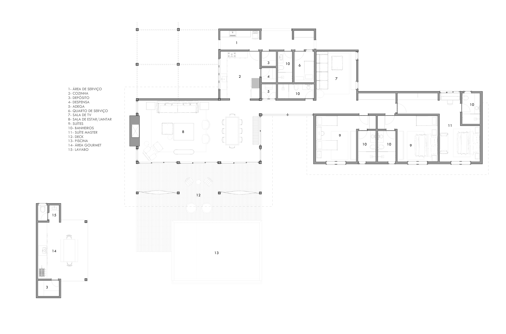
PROJETO: RECANTO DO ANDALUZ

  • LOCALIZAÇÃO: VALE DAS VIDEIRAS, PETRÓPOLIS – RJ.
  • ÁREA: 380 M²
  • ANO DO PROJETO: 2022