loader image

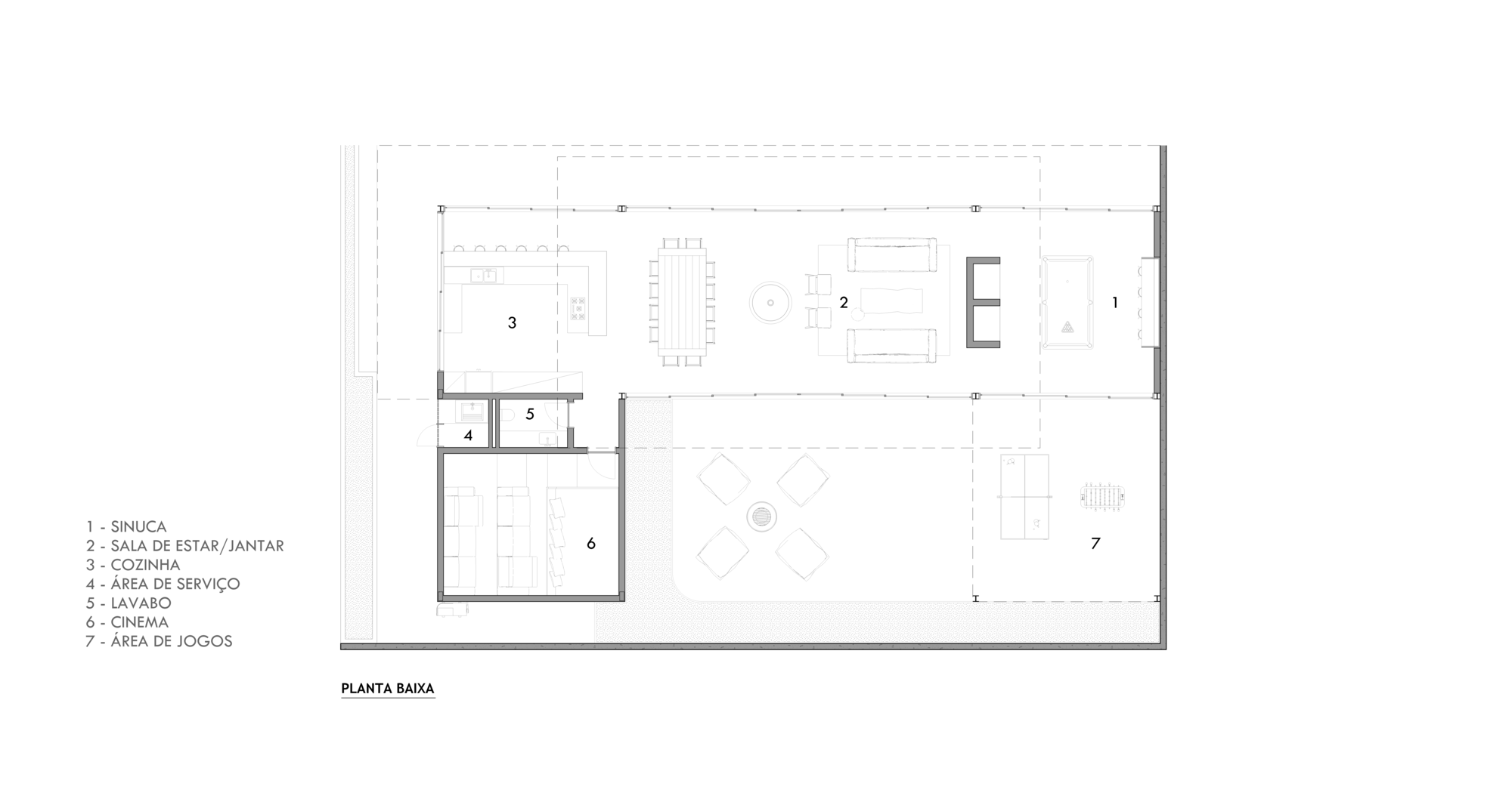
PROJETO O PAVILHÃO

  • LOCALIZAÇÃO: NOGUEIRA, PETRÓPOLIS – RJ.
  • ÁREA: 220 M²
  • ANO DO PROJETO: 2024