loader image

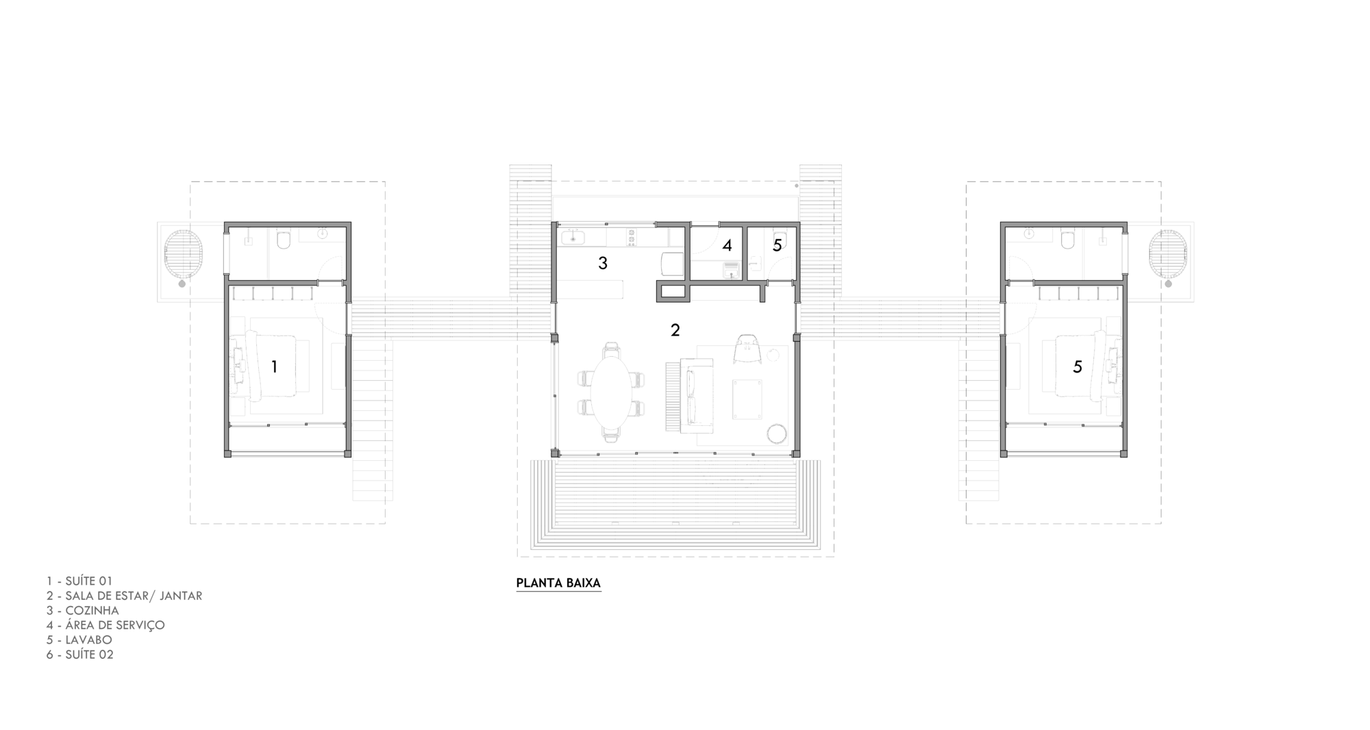
PROJETO: ESTÂNCIAS DO VALE

  • LOCALIZAÇÃO: VALE DAS VIDEIRAS, PETRÓPOLIS – RJ.
  • ÁREA: 130 M²
  • ANO DO PROJETO: 2025