loader image

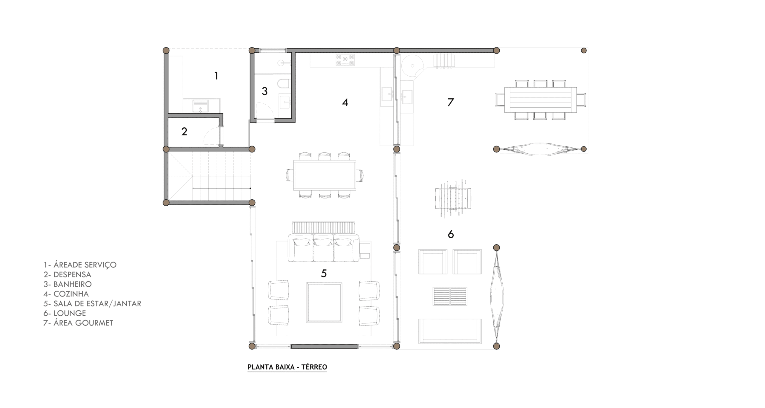
PROJETO: CASA PÉ NA AREIA

  • LOCALIZAÇÃO: PONTA NEGRA, MARICÁ – RJ.
  • ÁREA: 300 M²
  • ANO DO PROJETO: 2024