loader image

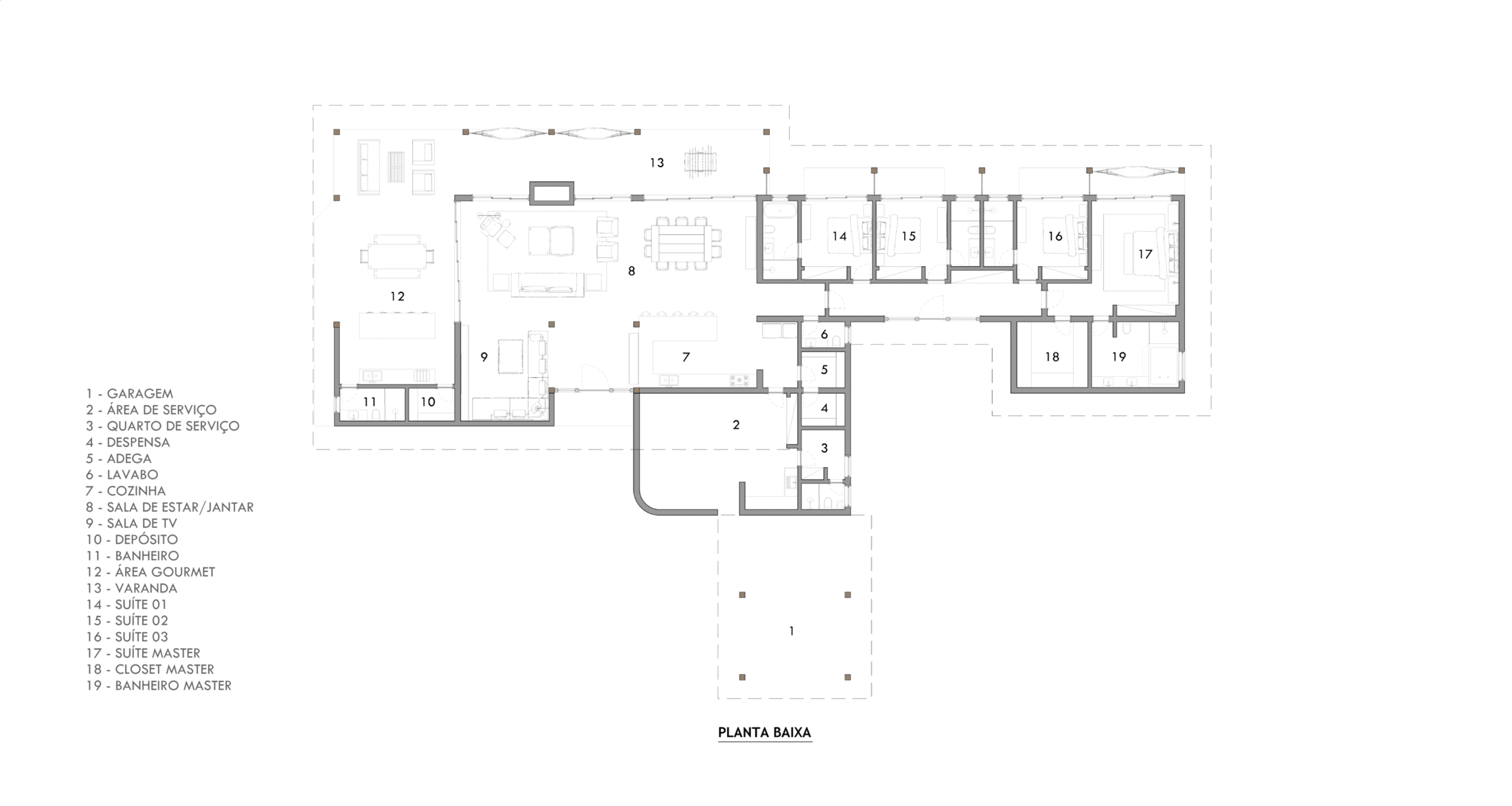
PROJETO: CASA DAS 9 ÁGUAS

  • LOCALIZAÇÃO: VALE DAS VIDEIRAS, PETRÓPOLIS – RJ.
  • ÁREA: 360 M²
  • ANO DO PROJETO: 2025