loader image

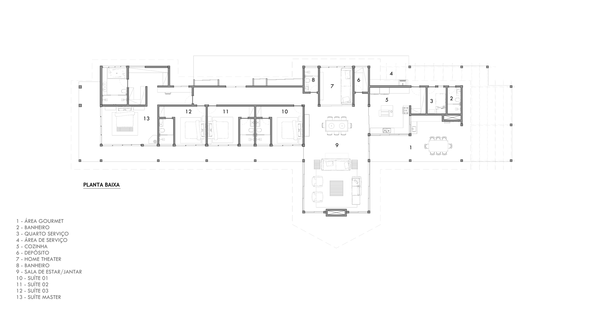
PROJETO: CASA ASA DELTA

  • LOCALIZAÇÃO: SECRETÁRIO, PETRÓPOLIS – RJ.
  • ÁREA: 370 M²
  • ANO DO PROJETO: 2021
  • ANO EXECUÇÃO: 2022 – 2023